Samfällighetsföreningen Vindruvan
Värme och vatten
Samfällighetföreningens fastigheter är anslutna till fjärrvärme via ett sekundärt system bestående av tre undercentraler och kulvertar ägda av samfällighetsföreningen. Från undercentralerna (som innehåller värmeväxlare, cirkulationspumpar, ventiler och reglersystem) matas fastigheterna med radiatorvatten och varmvatten via kulvertar. Varje undercentral matar ca 1/3 av samfällighetföreningens 93 fastigheter.
Det sekundära systemets radiatorvattentemperatur styrs baserat på utomhustemperatur och årstid. Cirkulationspumparna för radiatorvatten är tryckstyrda och är aktiva endast när det finns behov av uppvärmning.
Samfällighetföreningens fastigheter är av fyra typer, 2-plan, 1,5-plan och två 1-plan (med två olika golvareor). Fastigheterna har ett vanligt vattenburet värmesystem med termostatreglerade radiatorer.
Fastigheterna saknar energimätare för radiatorvatten och varmvatten. Varmvatten mäts med flödesmätare som läses av två gånger per år.
TV och fiber
Ett nytt fibernät installerades i föreningen i slutet av 2012. I samband med övergången stängdes vårt gamla kabel-TV-nät ner. Alla fastighetsägare ansvarar själv för sin egen fiber och sitt TV-utbud.
Farthinder
Varje år på vår- och höststädningsdagarna plockas farthinder ut och in. Inom området gäller max 30 km/h, men givetvis ska hastigheten anpassas efter omgivningen.
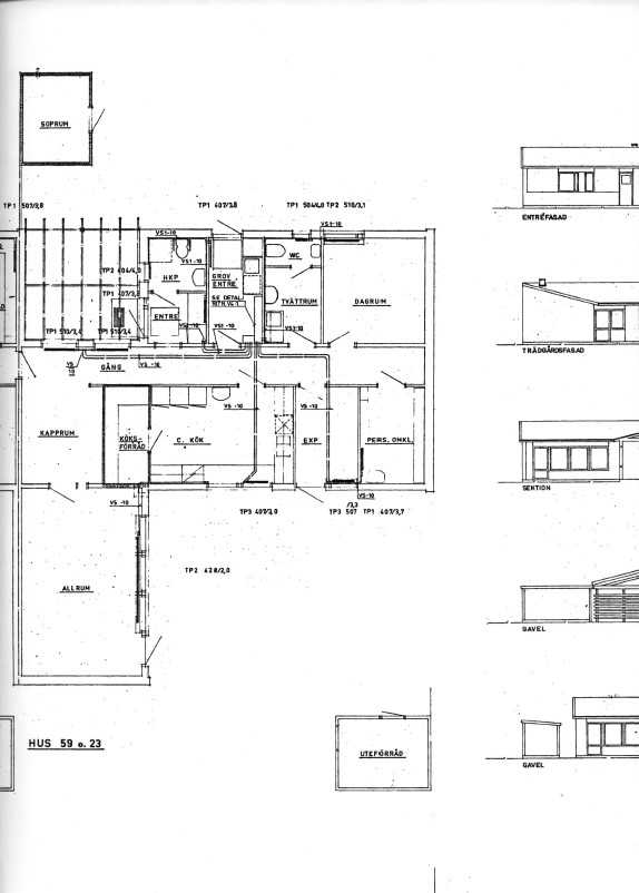
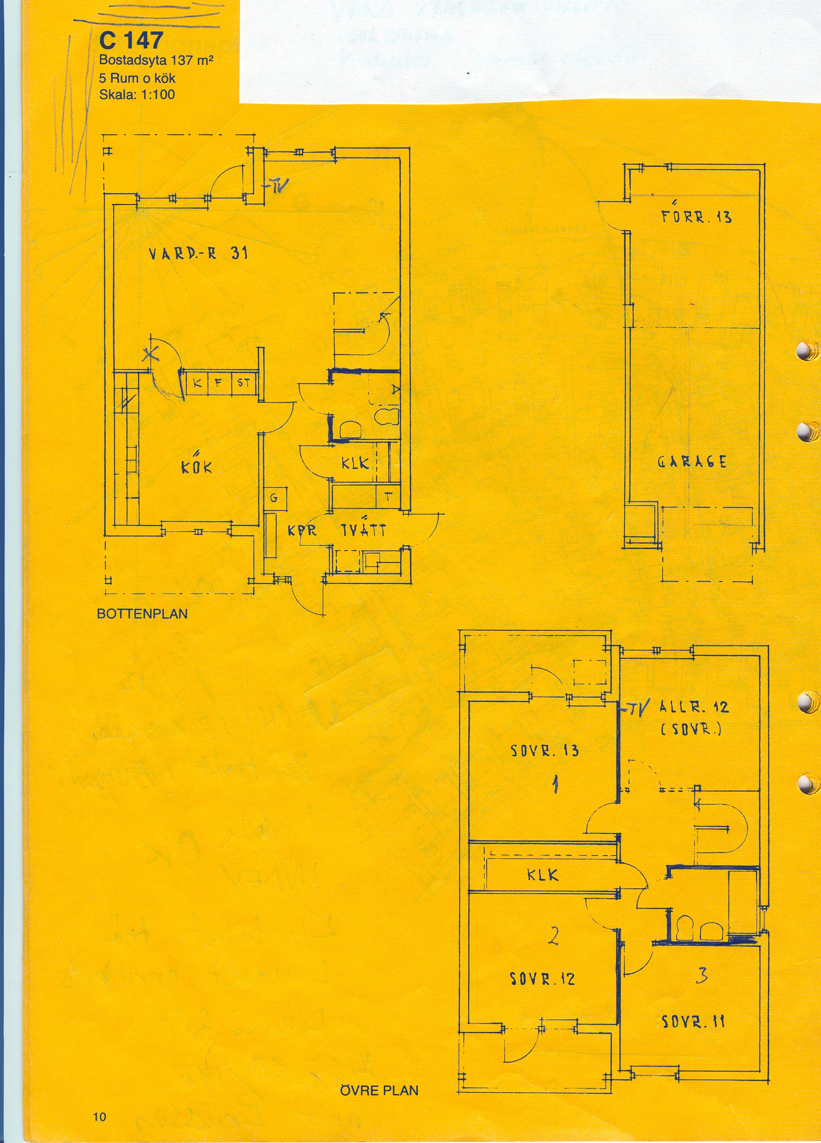
Husritningar
I vårt område finns det tre typer av hus.
![]() |
![]() |
![]() |
|
Husritning |
Husritning 1,5-plan |
Husritning 2-plan |
![]() |
![]() |
![]() |
|
Husvy |
Husvy 1,5-plan |
Husvy 2-plan |





